
| 月額 | 5,000円(税込 5,500円) |
|---|---|
| 設備タイプ | その他 |
| 時間制限 | 無 |
| 重量 | (ー) |
| 募集状況 |
予約受付中 |
|---|---|
| 全長 | 2300mm |
| 全幅 | 1000mm |
| 全高 | (ー) |



現在、この駐車場は満車となっており、空き車室がございません。ご予約いただくと、解約等により空き車室が出た場合に優先してご連絡させていただきます。
保証金は、解約時に
返金されます
(税込 5,500円)
(税込 11,000円)
借り始めの時期により変動します。
(税込 22,000円)
ご契約の際に、お振込にてお支払いいただきます。
借り始めの時期により変動します。
現在、この駐車場は満車となっており、空き車室がございません。ご予約いただくと、解約等により空き車室が出た場合に優先してご連絡させていただきます。
設備がどえりゃええからかりてちょ~
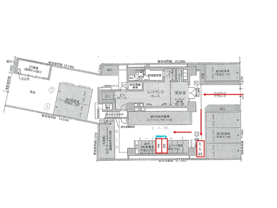
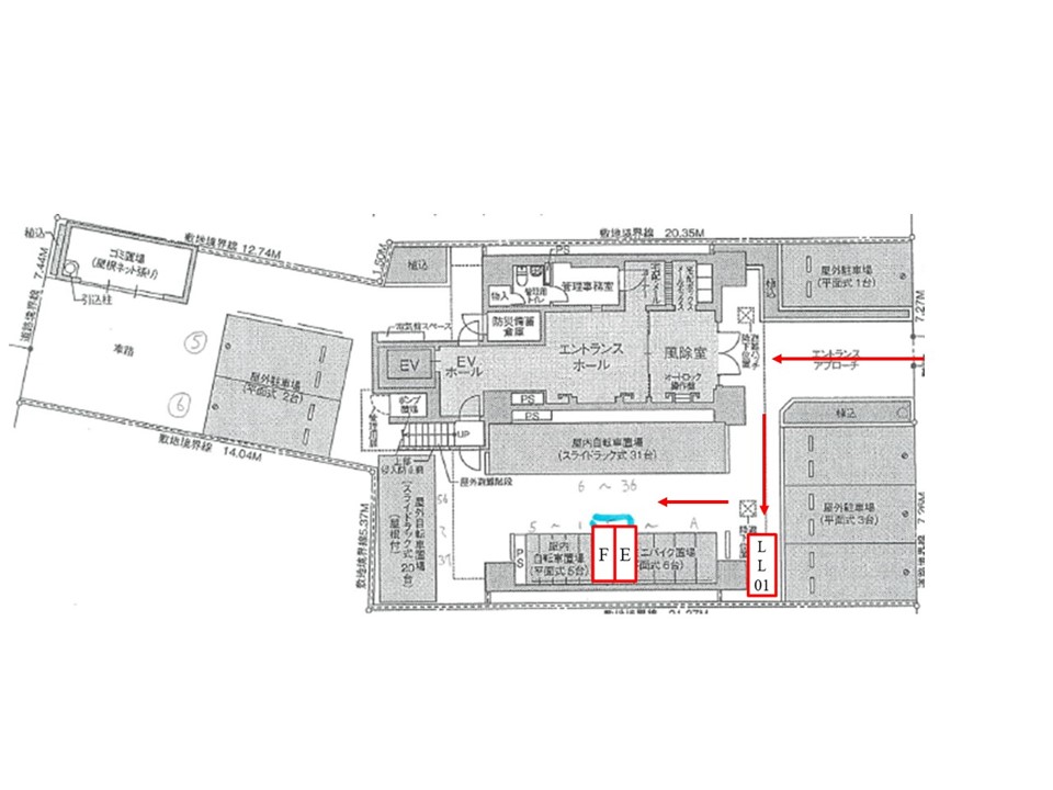
名古屋市営地下鉄鶴舞線「大須観音駅」徒歩4分/名古屋市営地下鉄鶴舞線「上前津駅」徒歩15分