
| 月額 | 7,000円(税込 7,700円) |
|---|---|
| 設備タイプ | その他 |
| 時間制限 | 無 |
| 重量 | (ー) |
| 募集状況 |
募集中 |
|---|---|
| 全長 | 2100mm |
| 全幅 | 1000mm |
| 全高 | (ー) |




こちらは、「空き状態」もしくは「空き予定」の駐車場です。
また、初回で頂く賃料は契約日により若干の変動がありますので各担当にご確認ください。
保証金は、解約時に
返金されます
(税込 7,700円)
(税込 15,400円)
借り始めの時期により変動します。
(税込 30,800円)
ご契約の際に、お振込にてお支払いいただきます。
借り始めの時期により変動します。
こちらは、「空き状態」もしくは「空き予定」の駐車場です。
また、初回で頂く賃料は契約日により若干の変動がありますので各担当にご確認ください。
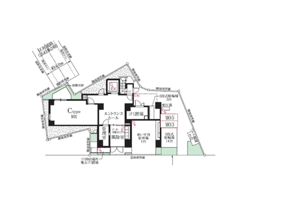
アンカー有!好立地のため早めのお問い合わせを!
西武池袋線 『椎名町駅』 徒歩7分/西武新宿線 『下落合駅』 徒歩16分/ 都営大江戸線 『落合南長崎駅』 徒歩14分/山手通り沿い、オリンピック 中落合店近く