
| 月額 | 5,000円(税込 5,500円) |
|---|---|
| 設備タイプ | その他 |
| 時間制限 | 無 |
| 重量 | (ー) |
| 募集状況 |
予約受付中 |
|---|---|
| 全長 | 2100mm |
| 全幅 | 800mm |
| 全高 | (ー) |



現在、この駐車場は満車となっており、空き車室がございません。ご予約いただくと、解約等により空き車室が出た場合に優先してご連絡させていただきます。
保証金は、解約時に
返金されます
(税込 5,500円)
(税込 11,000円)
借り始めの時期により変動します。
(税込 22,000円)
ご契約の際に、お振込にてお支払いいただきます。
借り始めの時期により変動します。
現在、この駐車場は満車となっており、空き車室がございません。ご予約いただくと、解約等により空き車室が出た場合に優先してご連絡させていただきます。
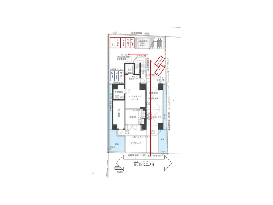
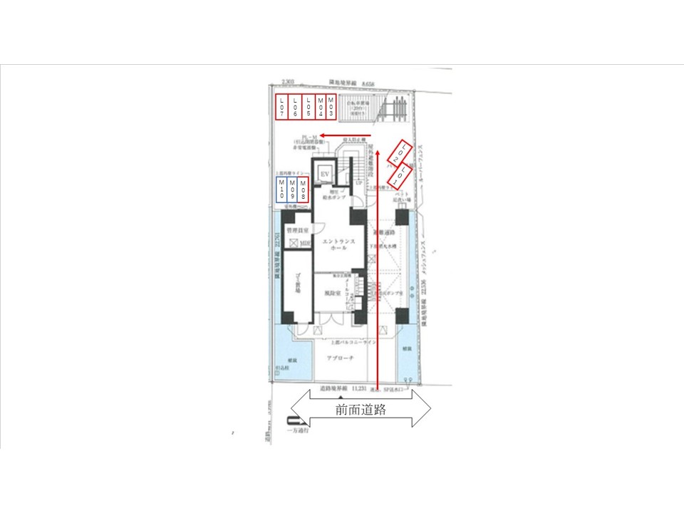
駅近物件!更に全区画アンカー付きでセキュリティ面もばっちりです!お問い合わせお待ちしております。
JR京浜東北線「新子安駅」徒歩2分/京急本線「京急新子安駅」徒歩2分