
| 月額 | 3,500円(税込 3,850円) | 
|---|---|
| 設備タイプ | その他 | 
| 時間制限 | 無 | 
| 重量 | (ー) | 
| 募集状況 | 
							 募集中 | 
					
|---|---|
| 全長 | 2200mm | 
| 全幅 | 800mm | 
| 全高 | (ー) | 
												
												
												
												
												
																				
				
			





こちらは、「空き状態」もしくは「空き予定」の駐車場です。
また、初回で頂く賃料は契約日により若干の変動がありますので各担当にご確認ください。
保証金は、解約時に
返金されます
(税込 3,850円)
(税込 7,700円)
借り始めの時期により変動します。
(税込 15,400円)
ご契約の際に、お振込にてお支払いいただきます。
借り始めの時期により変動します。
こちらは、「空き状態」もしくは「空き予定」の駐車場です。
また、初回で頂く賃料は契約日により若干の変動がありますので各担当にご確認ください。
							
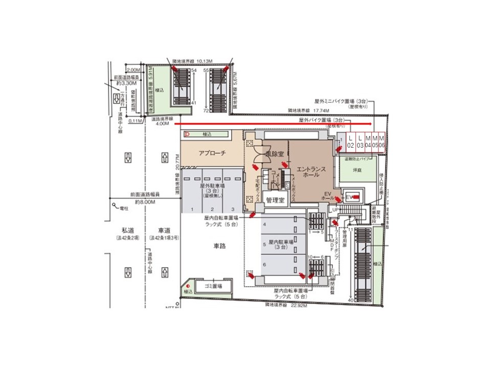
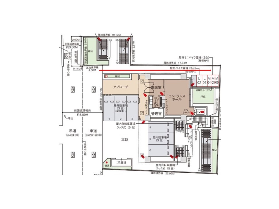
						大型バイクも入庫可能です!屋根有アンカー有で、設備充実しています。お問合せお待ちしております。
大阪メトロ千日前線・今里筋線「今里駅」徒歩9分/JR大阪環状線・大阪メトロ長堀鶴見緑地線「緑橋駅」徒歩9分