
| 月額 | 5,500円(税込 6,050円) |
|---|---|
| 設備タイプ | その他 |
| 時間制限 | 無 |
| 重量 | (ー) |
| 募集状況 |
募集中 |
|---|---|
| 全長 | 2200mm |
| 全幅 | 750mm |
| 全高 | (ー) |



こちらは、「空き状態」もしくは「空き予定」の駐車場です。
また、初回で頂く賃料は契約日により若干の変動がありますので各担当にご確認ください。
保証金は、解約時に
返金されます
(税込 6,050円)
(税込 12,100円)
借り始めの時期により変動します。
(税込 24,200円)
ご契約の際に、お振込にてお支払いいただきます。
借り始めの時期により変動します。
こちらは、「空き状態」もしくは「空き予定」の駐車場です。
また、初回で頂く賃料は契約日により若干の変動がありますので各担当にご確認ください。
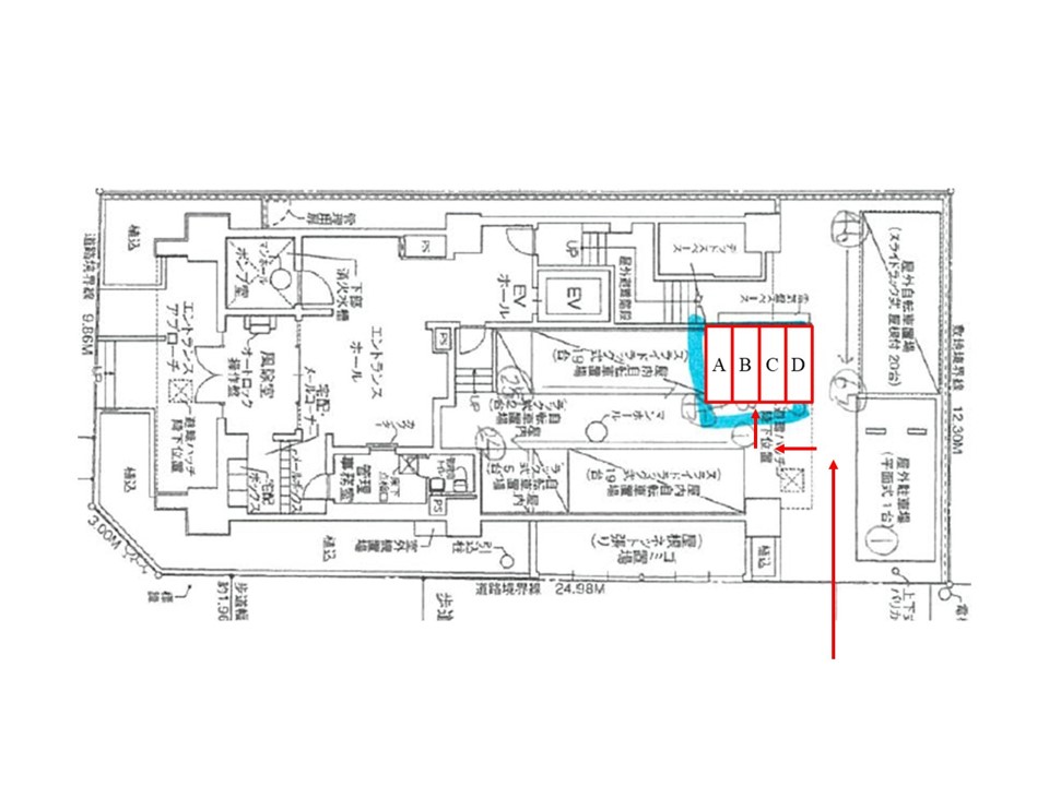
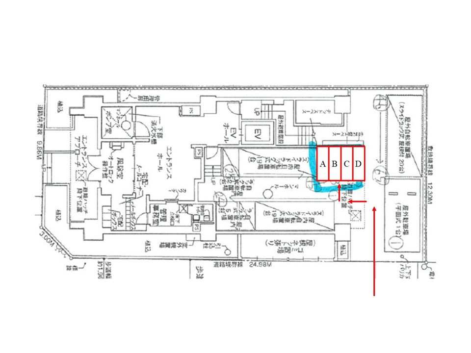
周りに何件か運営している物件がありますが、満車が多いです。今回4台の募集ですが、すぐ埋まると思います!お早めにお問い合わせください!!
JR東海道本線/金山駅 徒歩4分 地下鉄名城線/金山駅 徒歩4分 名鉄名古屋本線/金山駅 徒歩4分