
| 月額 | 5,000円(税込 5,500円) |
|---|---|
| 設備タイプ | その他 |
| 時間制限 | 無 |
| 重量 | (ー) |
| 募集状況 |
募集中 |
|---|---|
| 全長 | 2300mm |
| 全幅 | 800mm |
| 全高 | (ー) |




こちらは、「空き状態」もしくは「空き予定」の駐車場です。
また、初回で頂く賃料は契約日により若干の変動がありますので各担当にご確認ください。
保証金は、解約時に
返金されます
(税込 5,500円)
(税込 11,000円)
借り始めの時期により変動します。
(税込 22,000円)
ご契約の際に、お振込にてお支払いいただきます。
借り始めの時期により変動します。
こちらは、「空き状態」もしくは「空き予定」の駐車場です。
また、初回で頂く賃料は契約日により若干の変動がありますので各担当にご確認ください。
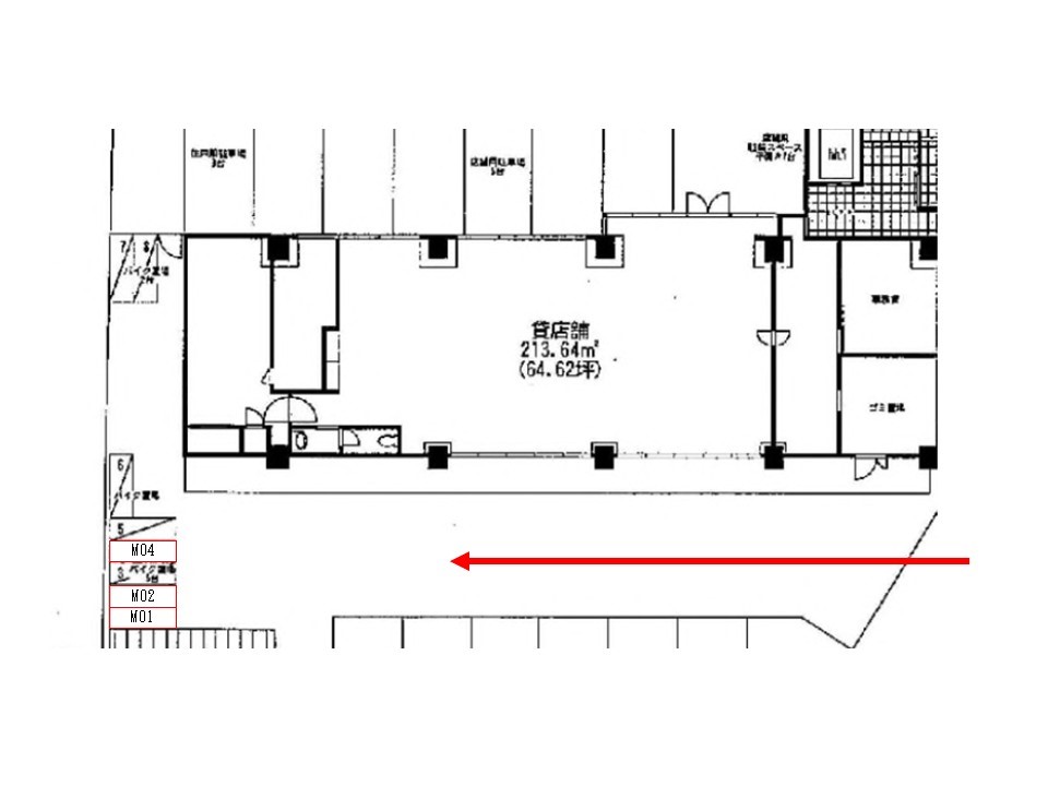
3路線利用可能!好立地のため早めのお問い合わせを!
南武線『西国立駅』徒歩10分/中央線・南武線『立川駅』徒歩15分