
| 月額 | 2,500円(税込 2,750円) |
|---|---|
| 設備タイプ | その他 |
| 時間制限 | 無 |
| 重量 | (ー) |
| 募集状況 |
募集中 |
|---|---|
| 全長 | 2000mm |
| 全幅 | 800mm |
| 全高 | (ー) |




こちらは、「空き状態」もしくは「空き予定」の駐車場です。
また、初回で頂く賃料は契約日により若干の変動がありますので各担当にご確認ください。
保証金は、解約時に
返金されます
(税込 2,750円)
(税込 5,500円)
借り始めの時期により変動します。
(税込 11,000円)
ご契約の際に、お振込にてお支払いいただきます。
借り始めの時期により変動します。
こちらは、「空き状態」もしくは「空き予定」の駐車場です。
また、初回で頂く賃料は契約日により若干の変動がありますので各担当にご確認ください。
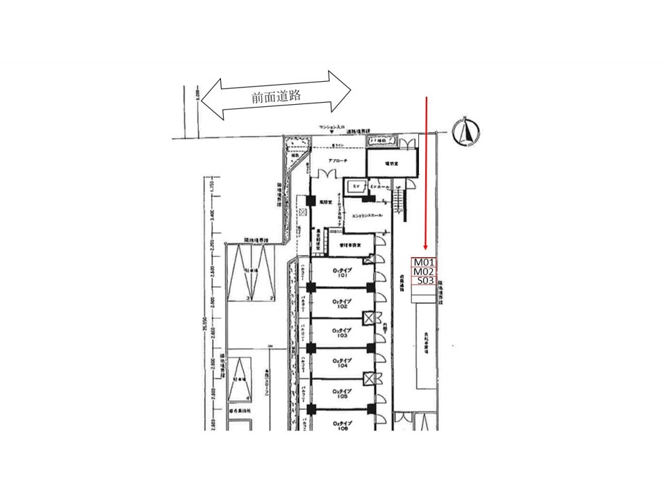
屋根有区画です!是非お問い合わせください!
川崎市幸消防署徒歩11分/川崎市立御幸小学校徒歩11分